This consolidation is unofficial and is for reference only.  For the official version of the regulations, consult the original documents on file with the Office of the Registrar of Regulations, or refer to the Royal Gazette Part II.
Regulations are amended frequently.  Please check the list of Regulations by Act to see if there are any recent amendments to these regulations filed with our office that are not yet included in this consolidation.
Although every effort has been made to ensure the accuracy of this electronic version, the Office of the Registrar of Regulations assumes no responsibility for any discrepancies that may have resulted from reformatting.
This electronic version is copyright © , Province of Nova Scotia, all rights reserved.  It is for your personal use and may not be copied for the purposes of resale in this or any other form.


Point Michaud Beach Provincial Park Designation

made under clauses 8(a) and (d) of the

Provincial Parks Act

R.S.N.S. 1989, c. 367

O.I.C. 2025-317 (effective November 4, 2025), N.S. Reg. 245/2025



Table of Contents


Please note: this table of contents is provided for convenience of reference and does not form part of the regulations.
Click here to go to the text of the regulations.

 

O.I.C. 2025-317

Schedule “A” Point Michaud Beach Provincial Park



 

O.I.C. 2025-317

The Governor in Council on the report and recommendation of the Minister of Natural Resources dated September 15, 2025, and pursuant to clauses 8(a) and (d) of Chapter 367 of the Revised Statutes of Nova Scotia, 1989, the Provincial Parks Act, is pleased, effective on and after November 4, 2025, to

 

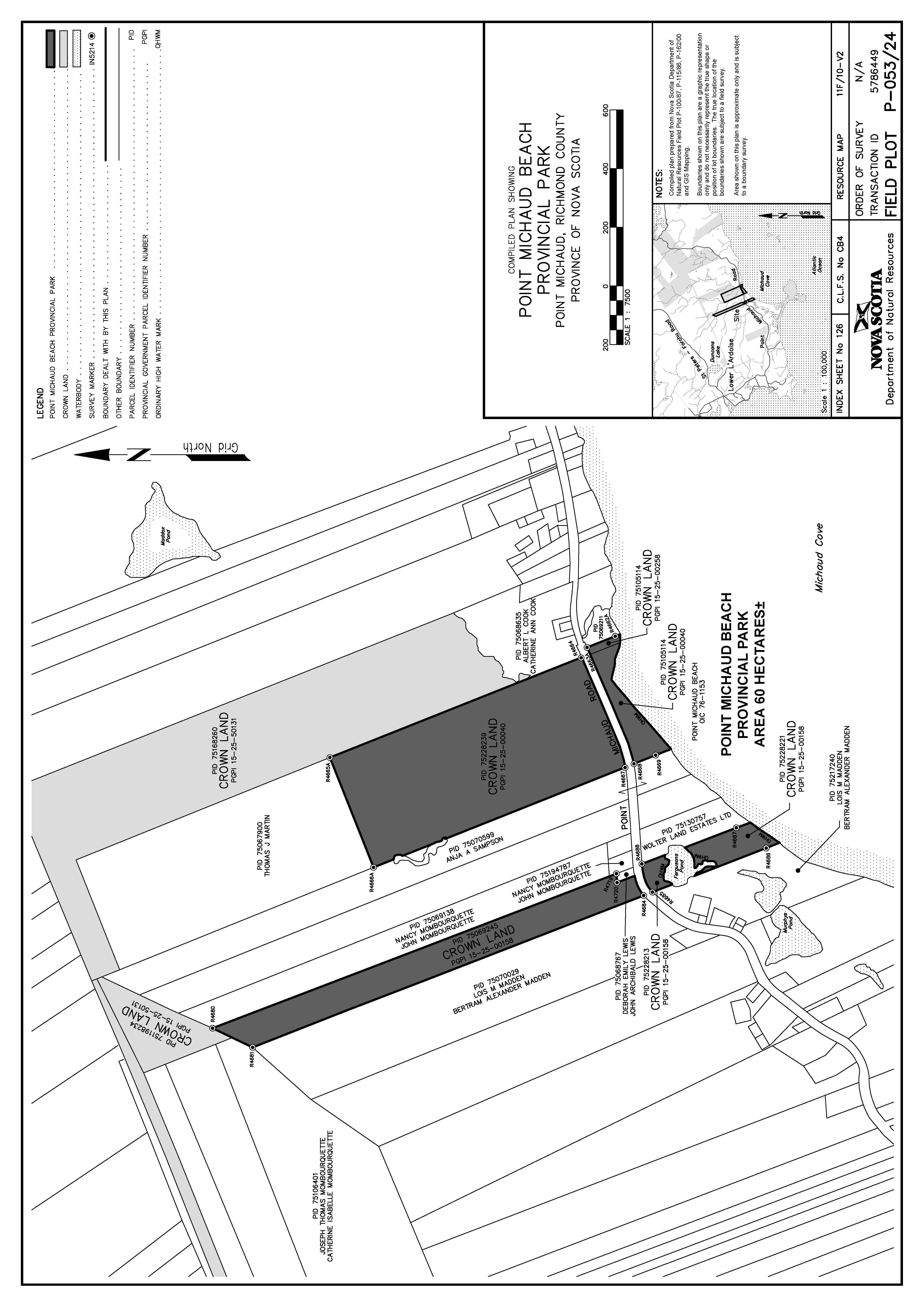
(a)      designate approximately 60 hectares (148 acres) of Crown lands in Richmond County, currently identified as PIDs 75069245, 75228213, 75228221, 75228239 and 75105114, shown outlined in bold and shaded dark grey on the plan marked Schedule “A” attached to and forming part of the report and recommendation and declare that it be known as Point Michaud Beach Provincial Park; and

 

(b)      authorize the Minister of Natural Resources to execute such documents as may be necessary to achieve the purposes of this Order.



Schedule “A”

Point Michaud Beach Provincial Park


Graphic showing map of Point Michaud Beach Provincial Park